Căn nhà 72 m2 tạo cảm giác cứ 'tan ra, rộng rãi, xuyên suốt'
Đăng lúc: 2020-12-22 16:40:00
|
Bởi: admin
|
Lượt xem: 0
|
Chuyên mục: Địa ốc
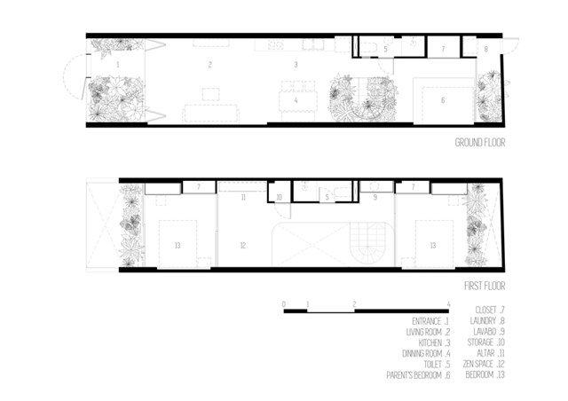
Hệ thống vách ngăn được thiết kế có thể di chuyển linh hoạt, mọi giới hạn cố hữu bị loại bỏ. Khu vườn đan xen xuất hiện và biến mất, nhà vệ sinh ẩn trong tủ gỗ... tạo cảm giác rộng rãi.









